Ningbo Richge Technology Co., Ltd.
Ningbo Richge Technology Co., Ltd.
Өнімдер
Өнімдер
VS1 (ZN63) -24 ішіндегі vcb vcb вакуумдық ажыратқышы
  • VS1 (ZN63) -24 ішіндегі vcb vcb вакуумдық ажыратқышыVS1 (ZN63) -24 ішіндегі vcb vcb вакуумдық ажыратқышы
  • VS1 (ZN63) -24 ішіндегі vcb vcb вакуумдық ажыратқышыVS1 (ZN63) -24 ішіндегі vcb vcb вакуумдық ажыратқышы

VS1 (ZN63) -24 ішіндегі vcb vcb вакуумдық ажыратқышы

Model:VS1(ZN63)-24
С1-24 ішкі кернеулі вакуумдық сөндіргіш 24 кВ-тық кернеудің қуат жүйесіне электр желілері жабдығы және өндірістік қуат көзі үшін қорғаныс және бақылау бөлімі ретінде қолданылады. Ол kyn28 (gzs1), xgn, xgn, gg-1a және басқа тарату панельдерімен жабдықта алады. Байланысты өнімдер: оқшауланған қолдар, сақтандырғыш, сүзгішті пайдаланыңыз және кернеу трансформаторының қолдары.  Біз 24 кВ газсыздандыруға арналған ұзақ мерзімді және сенімді қарым-қатынасқа, газбен оқшауланған қондырғылар үшін сақтандырғыш цилиндр, газ оқшауланған ауыстырғыш F модуліне арналған. Біздің компания әрқашан «тұтастық, стандарттау, тиімділік, ынтымақтастық, ынтымақтастық, ынтымақтастық, серіктестер және жеңіске жету» және басшылықтың басшылығына баса назар аударады және басқарылатын басқаруды баса көрсетеді және қызметкерлердің шығармашылық пен жауапкершілігін арттыру үшін қызмет туралы хабардар етуге назар аударады. Клиенттерге үлкен құндылыққа көмектесетін мұқият кәсібилігі және шынайы және шынайы және адал ынтымақтастық тұжырымдамалары бар «көп жеңімпаз» серіктестік жүйесін құрамыз.

VS1 (ZN63) -24 ішіндегі vcb vcb вакуумдық ажыратқышы

Vs1-24 Ішкі вольтты желінің сериясы Жалпы оқшауланған цилиндрі бар вакуумдық сөндіргіш - бұл үш фраза - бұл үш фраза, тәулік бойы, 50 Гц. Бұл өнеркәсіп және тау-кен кәсіпорны, электр қондырғылары, электр станциялары және қосалқы станциядағы электр жабдықтарын бақылауды қорғау үшін пайдаланылады. Бұл вакуумдық ажыратқыш ұлттық стандарттарға және IEC стандартына сәйкес келеді, мүмкіншілік M2-E2-C2 бағасына жетеді.

Өнім композициялық оқшаулау тәсілін, көктемгі зарядталған операцияны және шағын көлемді, ықшам дизайнның сипаттамасымен, ықшам дизайн мен сенімді жұмыс істейді. Ол тарату материалымен оңай сәйкес келіп, «бесеуіздің алдын алу» қажеттілігін қанағаттандыра алады.

Вакуумдық ажыратқыштың бұл түрін kyn28-24 (GZS1) сияқты таратудың көптеген түрлері үшін қолдануға болады. Бұл өнімдер сериясына: VCB жүк көлігі оқшауланған жүк көлігі және сақтандырғыш және т.б.

Өнім композициялық оқшаулау тәсілін, көктемгі зарядталған операцияны және шағын көлемнің сипаттамасымен, ықшамдау

Қысқаша сипаттама:

Vs1-24 жабық вакуумдық ажыратқыш - бұл 3 фазалы AC 50HZ 24KV жабық жабдық

♦ Орнату тәсілі: Шығарылатын түрі, белгіленген түрі, бүйірлік типтегі тип;

♦ жұмыс механизмі: көктемгі жұмыс механизмі және тұрақты магниттік жұмыс механизмі;

♦ Полюс түрі: жиналған полюс, ендірілген полюс;

♦ Қолдану: sw.tchgear kyn28-24, XGN-24.

♦ Қосымша штепсель: 58pins, 64PIN.

Өнім стандарттары

♦ IEC6271-100 жоғары кернеулі қондырғылар және басқару құралдары 100-бөлім: айнымалы ток сөндіргіштері

♦ GB1984 жоғары кернеу Ацті айнымалы ток сөндіргіштері

♦ gb / t11022 Жоғары вольтты коммутатор мен басқару дирекцияларының ортақ сипаттамалары

♦ JB / T 3855 жоғары кернеу

♦ DL / T402 Жоғары вольтты айнымалы ток ажыратқыштарының сипаттамасы






Негізгі ақпарат.


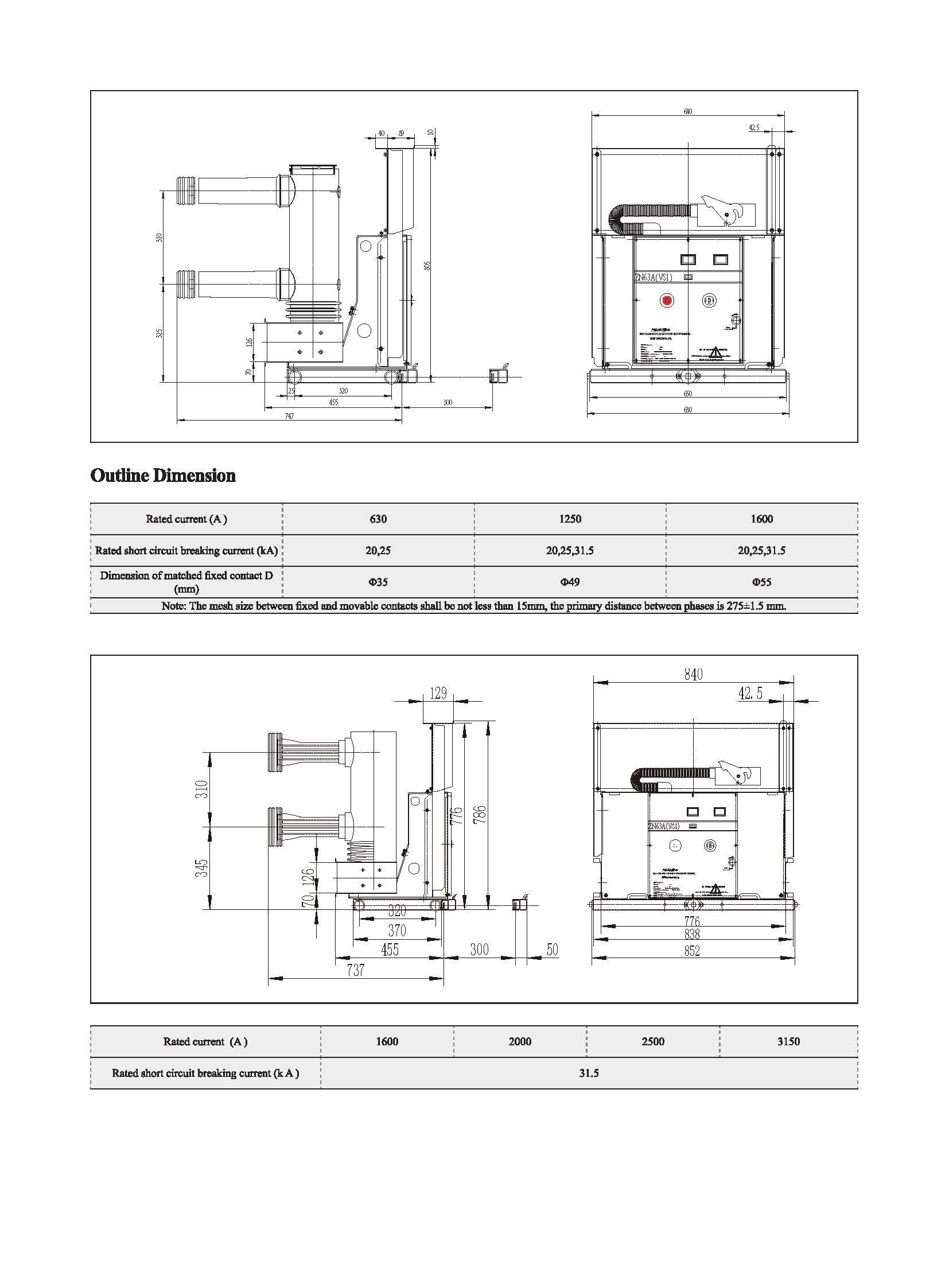
Техникалық параметрлер



Техникалық сызбалар


Қоршаған орта жағдайларын қолдану:

1. Қоршаған орта температурасы: -10 ℃ - + 40 ℃

2. Қоршаған орта ылғалдылығы: күннің орташа ылғалдылығы 95% -дан аспауы керек; Айдың орташа ылғалдылығы 90% -дан аспауы керек;

3. Жер сілкінісі қарқындылығы: 8 градустан аспайды

4. Қаныққан бу қысымы: күннің орташа қысымы2-ден аспауы керек. 2KPA, айдың орташа қысымы 1,8 кпадан аспауы керек;

5. Теңіз деңгейінен биіктік: 1000 м-ден аз; (арнайы талаптарды қоспағанда)

6.1Т 6.1Т жерлерде өрт, жарылыс, ауыр лас, химиялық коррозия және зорлық-зомбылық vs1 орнатылуы керек.




Жиі қойылатын сұрақтар

С: Мен сіздің өнімдеріңіздің бағасын ала аламын ба?

Ж: Қош келдіңіз. Өтінемін, бізге сұрақ-жауап жіберіңіз. Біз сізге 24 сағат ішінде жауап береміз.


С: Жаппай тапсырыс алдында үлгіні ала аламын ба?

Ж: Ия, біз сапаны тексеру және тексеру үшін үлгіні қолдаймыз.


С: Біздің логотип / компанияның атын өнімдерге басып шығарамыз ба?

Ж: Ия, әрине, біз OEM қабылдаймыз, содан кейін бізге бренд авторизациясын қамтамасыз ету керек


С: Сіз өнімді теңшеуді қабылдайсыз ба?

Ж: Ия, әрине, нақты сызбалармен немесе параметрлермен қамтамасыз етіңіз, біз сіздерді бағалаудан кейін айтамыз


С: Қорғасын уақыты қандай?

Ж: Қорғасын уақыты тапсырыс берілген мөлшерге байланысты, әдетте, төлемді алғаннан кейін 7-20 күн ішінде байланысты.


С: Сіздің сауда терминдеріңіз қандай?

Ж: Біз EXW, FOB, CIF, FCA және т.б. қабылдаймыз.


С: Сіздің төлем әдісіңіз қандай?  

Ж: Біз T / T, Western Union, PayPal, қайтарымсыз л / с қабылдаймыз және т.с.с.


С: Сіз дайын өнімді тексересіз бе?

Ж: Иә, өндіріс пен дайын өнімнің әр сатысы жеткізілім алдында QC департаменті тексеріледі. Жөнелтілім алдында біз сіздің анықтамалық есептеріңізді қамтамасыз етеміз


С: Сатудан кейінгі сапа мәселелерін қалай шешуге болады?

Ж: Сапа мәселелерін суретке түсіріңіз және бізге тексеру және растау үшін бізге жіберіңіз, біз сізге 3 күн ішінде қанағаттанарлық шешім қабылдаймыз.




Фабрика


Сертификат




Hot Tags: VS1 (zn63) -24 Ondrantaдан қорғайтын ішкі вакуумдық ажыратқыш, Қытай, өндіруші, жеткізуші, зауыт, төмен баға, сапа, соңғы сату, алдыңғы қатарлы
Сұрау жіберу
Байланыс ақпараты
  • Мекенжай

    №1083 Жонгшан Шығыс жолы, Юньцоу ауданы, Нингбо қаласы, Жезжiң провинциясы, Қытай

  • Электрондық пошта

    sales@switchgearcn.net

Төмен вольтты тарату құрылғылары, жоғары вольтты оқшаулағыштар, жоғары вольтты жерге қосқыштар немесе бағалар тізімі туралы сұраулар үшін бізге электрондық поштаңызды қалдырыңыз, біз 24 сағат ішінде байланысамыз.
Жаңалықтар бойынша ұсыныстар
X
Біз cookie файлдарын сізге жақсырақ шолу тәжірибесін ұсыну, сайт трафигін талдау және мазмұнды жекелендіру үшін пайдаланамыз. Осы сайтты пайдалану арқылы сіз cookie файлдарын пайдалануымызға келісесіз. Құпиялылық саясаты
Қабылдамау Қабылдау